
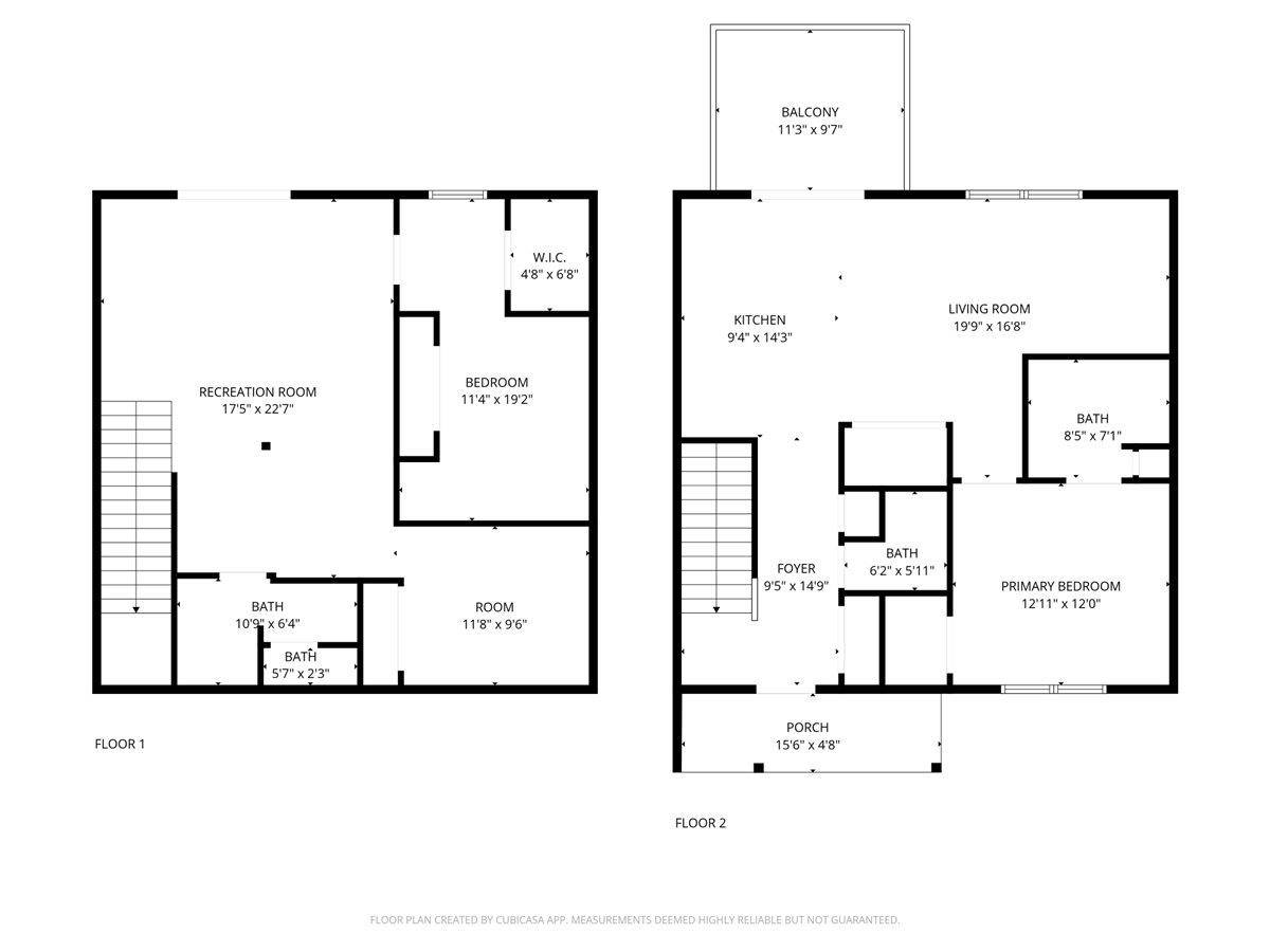
Welcome to this spacious and versatile townhome offering over 1,600 square feet of beautifully finished living space in a peaceful country settingjust 10 minutes from St. Albans and I-89, making commuting a breeze! Step in from the covered front porch to a welcoming foyer with a convenient half bath, then flow into the open-concept kitchen, dining, and living areas. Bright natural light fills the space through large windows and a sliding glass door that opens to a private balcony with tranquil wooded viewsperfect for relaxing year-round. The main level also features a comfortable bedroom and full bath for convenient single-level living. The finished lower level expands your possibilities with a large recreation room, cool flex space, and an additional bedroomideal for guests, a home office, or gym. The walk-out design adds easy outdoor access and brings in abundant natural light, creating a bright, functional extension of your living area. With quality finishes, efficient systems, and thoughtful design throughout, this home offers the perfect balance of comfort, style, and low-maintenance livingall within minutes of St. Albans amenities and effortless access to I-89 for Burlington commuters.
| MLS # | 5066805 |
|---|---|
| Listing Type | For Sale |
| Style | Condominium |
| HOA Dues | $200 |
| Sub-Type | Resale |
| Status | (10) Active - Active |
| Year | 2025 |
| Days On Site | 16 |
| Listing Provided By | Signature Properties of Vermont | Blake M Gintof |
| Bed(s) | 2 |
|---|---|
| Bath(s) | 3 Total |
| Basement | Y |
| Story(s) | 1 |
| Zoning | R1 |
| Rooms Total | 7 |
|---|---|
| Cooling | None |
| Heating | Propane, Baseboard |
| Interior Features | Ceiling Fan(s), Living/Dining, Master BR w/ BA, Natural Light, Indoor Storage, Walk-In Closet(s) |
| Appliances | Dishwasher, Microwave, Electric Range, Refrigerator, On Demand Water Heater |
| Exterior Features | Balcony, Covered Porch |
|---|---|
| Roof | Architectural Shingle |
| Construction Materials | Wood Frame, Vinyl Siding |
| Foundation Details | Concrete |
| Lot Features | Condo Development, Views, Wooded |
| Accessibility Features | 1st Floor Bedroom, 1st Floor Full Bathroom, 1st Floor Hrd Surfce Flr |
| Garage Yes / No | No |
|---|
| Utilities | Underground Utilities |
|---|---|
| Electric | Circuit Breakers |
| Sewer | Community, Septic Tank |
| State | VT |
|---|---|
| County | Franklin |
| City | Swanton |
| Zip Code | 05488 |
| Area | VT Franklin |
| School District | Franklin Northwest |
| State | VT |
|---|---|
| County | Franklin |
| City | Swanton |
| Zip Code | 05488 |
| Area | VT Franklin |
| School District | Franklin Northwest |
![]() | $384,90045 Reeves RoadSwanton, VT 05488 |
![]() | $384,90057 Reeves RoadSwanton, VT 05488 |
![]() | $334,90049 Reeves RoadSwanton, VT 05488 |
![]() | $334,90053 Reeves RoadSwanton, VT 05488 |
![]() | $334,90021 Reeves RoadSwanton, VT 05488 |